
117
HBE
118
ADS
119
DDIN
120
AD0
121
AD1
122
AD2
123
AD3
124
AD4
125
VCCD9
126
AD5
127
AD6
128
AD7
129
AD8
130
AD9
131
GNDD9
132
AD10
1
AD11
2
AD12
3
AD13
4
AD14
5
VCCD1
6
AD15
7
A16
8
A17
9
A18
10
A19
11
GNDD1
12
A20
13
A21
14
A22
15
A23
16
PDO
17
VCCD2
83
VCCA2
82
GNDA2
81
PTMP
80
SBG
79
SCVO
78
SVI
77
GNDA1
76
VCCA1
75
GNDD5
74
PMPH0
73
PMPH1
72
PMPH2
71
PMPH3
70
SMPH0
69
SMPH1
68
SMPH2
67
SMPH3
66
VCCD5
65
PEXT
64
PFAIL
63
SOSCO
62
SOSCI
61
RST
60
WDT
59
BUZCLK
58
DMRQ3
57
MWSI
56
URXD
55
UTEN
54
PIO0
53
PIO1
52
SNH
51
GNDD4
18
SDFDBK
19
SDIN
20
SDOUT
21
SLS
22
SCLK1
23
SPDW
24
MWSK
25
GNDD2
26
DMAK3
27
SDIS
28
DMAK1
29
SCLK2
30
STB3
31
STB2
32
VCCD3
33
CTTL
34
STB1
35
STB0
36
FOSCI
37
FOSCO
38
GNDD3
39
CCLK
40
INT0
41
INT1
42
INT2
43
INT3
44
INTR
45
UREN
46
UTXD
47
MWSO
48
SBYPS
49
PCLK
50
VCCD4
TL/EE/11331-54
116
GNDD8
115
HOLD
114
HLCA
113
WE0
112
WE1
111
OE
110
SEL1
109
VCCD8
108
SEL0
107
SEL3
106
RAS0
105
RAS1
104
CAS
103
CWAIT
102
GNDD7
101
MA1
100
MA2
99
MA3
98
MA4
97
MA5
96
VCCD7
95
MA6
94
MA7
93
MA8
92
MA9
91
MA10
90
GNDD6
89
MA11
88
MA12
87
MA13
86
MA14
85
MA15
84
VCCD6
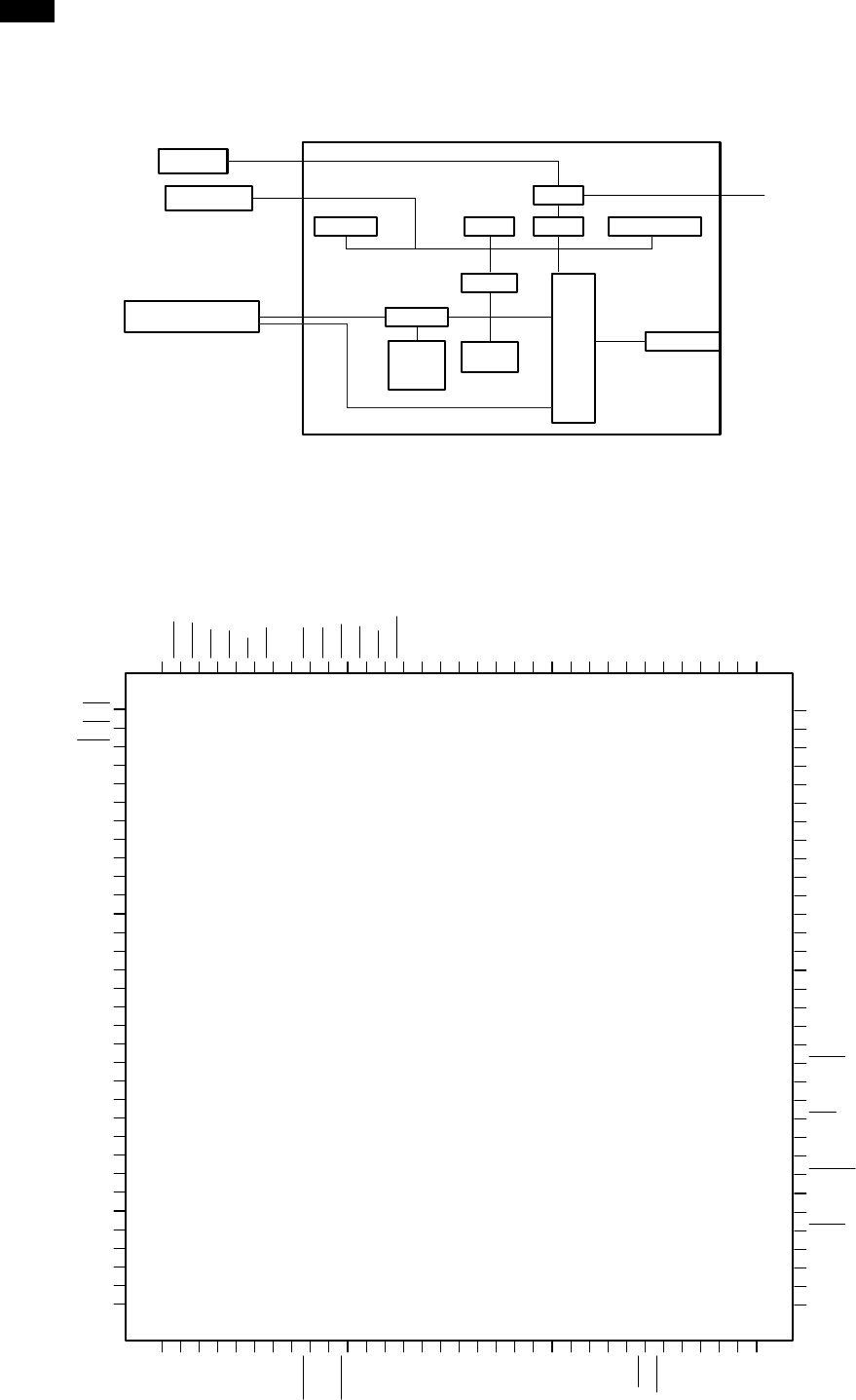
132-Pin FQFP Package
3. FAX PWB Functional block diagram (AR-F152 only)
4. LSI pin layout (AR-F152 only)
(1) NSFX200 (IC503) pin layout
Speaker
LCD PWB
PWB
Prog.ROM
CPU Bus
FX164
Image.
Memory
LC8213
Image. Bus
ASIC
Buf. Mem.
Main MemoryFX200
NCU
PSTN
PCL/FAX MCU LZ9FH19
SCAN
DATA
Memory
PRINT DATA
AR-F152
12 – 13
Komentarze do niniejszej Instrukcji