
AR-F14/PN1 OPERATIONAL DESCRIPTION 4-5
d.Saddle Delivery
The machine deposits a stack of sheets on the processing tray, staples it
(middle 2-point), and then moves it to the saddle unit. The saddle unit
folds the stack in two, and delivers it to the bind tray.
Fig.F02-201-05
B.Feed/Delivery
(1)Outline
The machine forwards the sheets coming from its host machine to the
delivery tray, processing tray, or saddle unit according to the type of
delivery used. The sheets forwarded to the processing tray or the saddle
unit are offset, stapled, or folded.
F02-202-01 shows the motors that are associated with moving and
aligning sheets. These motors are controlled (rotated clockwise or
counterclockwise) by the microprocessor (CPU) on the finisher controller
PCB.
The paper path is equipped with the sensors shown in T02-202-02 used
to monitor the arrival or passage of sheets.
If a sheet fails to arrive at or move past a specific sensor within a specific
period of time, the finisher controller will assume a jam, and stops the
ongoing operation and, at the same time, communicates the presence of
a jam to the host machine.
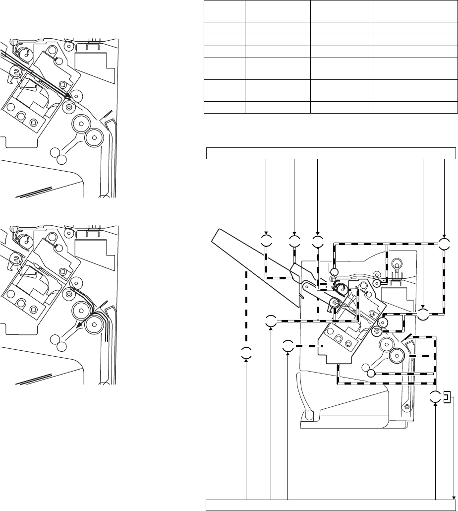
Table.T02-202-01
Fig.F02-202-01
Notation Name Description Connector on finisher
controller PCB
FFM Feed motor Stepping motor CN10
FPM Paddle motor Stepping motor CN10
FAM Delivery motor Stepping motor CN13
FFJM Alignment plate
motor (front)
Stepping motor CN3
FRJM Alignment plate
motor (rear)
Stepping motor CN3
FFSM Staple/fold motor Brush DC motor CN6
PI14
FFJM
FFSM
FFC
FSM
FLM
FAM
FRJM
FPM
FFM
Finisher controller PCB (1/2)
Feed motor
drive signal FEEDMTR
Paddle motor
drive signal PDLMTR
Alignment plate motor
(rear) drive signal RJOGMTR
Bind clutch drive signal B_CLU
Alignment plate motor
(front) drive signal FJOGMTR
Finisher controller PCB (2/2)
Staple/fold motor drive signal BINDMTR
Staple/fold motor clock detect signal
BIND_CLK
Shift motor drive signal SIFTMTR
Delivery motor drive signal EJCTMTR
Slide motor drive signal SLIDMTR
[04]OPERATIONALDESCRIPTION.fm 5 ページ 2004年4月19日 月曜日 午後1時37分
Komentarze do niniejszej Instrukcji