
PART NAMES AND FUNCTIONS
1-13
1
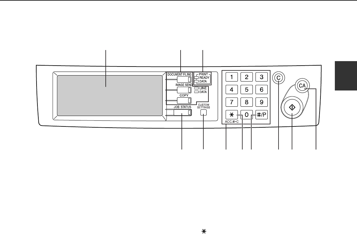
Operation panel
(1) Touch panel
The machine status, messages and touch keys are
displayed on the panel. The document filing, copy,
network scanner*
1
, and fax*
2
functions are used by
switching to the screen for the desired function.
See the following page.
(2) Mode select keys and indicators
Use to change modes and the corresponding
display on the touch panel.
[DOCUMENT FILING] key
Press to select the document filing mode. (See
page 7-5.)
[IMAGE SEND] key/LINE indicator/DATA
indicator
Press to change the display to network scanner
mode*1 or fax mode*2. (See the "Operation
manual (for network scanner)") and "Operation
manual (for facsimile)".)
[COPY] key
Press to select the copy mode.
(3) PRINT mode indicators
READY indicator
Print data can be received when this indicator is
lit.
DATA indicator
Lights up or blinks when print data is being
received. Also lights up or blinks when printing is
being performed.
(4) [JOB STATUS] key
Press to display the current job status. (See page
1-15.)
(5) [CUSTOM SETTINGS] key
This is used to store, edit, and delete user names
and folder names for the document filing function,
and to configure the key operator programs and
printer configuration settings. (See page 7-21)
(6) Numeric keys
Use to enter numeric values for various settings.
(7) [ ] key ([ACC.#-C] key)
This key is used in copy mode, document filing
mode, network scanner mode*
1
, and fax mode*
2
.
(8) [#/P] key
This is used as a program key when using the copy
function, and to dial when using the fax function*
2
.
(9) [C] key (Clear key)
This key is used in copy mode, document filing
mode, network scanner mode*
1
, and fax mode*
2
.
(10)
[START] key
Use this key to start copying in copy mode, scan a
document in network scanner mode*
1
, or scan a
document for transmission in fax mode*
2
.
(11)
[CA] key (Clear all key)
This key is used in copy mode, document filing
mode, network scanner mode*
1
, and fax mode*
2
.
Use the key to cancel settings and perform an
operation from the initial machine state.
*1 When the network scanner option is installed.
*2 When the fax option is installed.
(2)
(9)
(6)
(10) (11)
(7)
(1)
(3)
(8)
(4)
(5)
Copy_EX.book 13 ページ 2004年9月28日 火曜日 午後9時54分
Komentarze do niniejszej Instrukcji